|
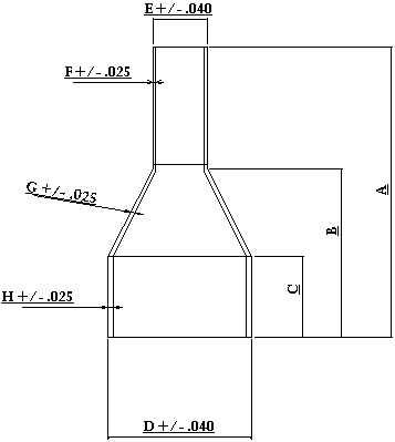
CONCENTRIC REDUCER LINER DIMENSIONS

|
SIZE |
A |
B |
C |
D |
E |
F |
G |
H |
|
11/2X1 |
7.625 |
4.250 |
3.500 |
1.610 |
1.060 |
0.12 |
TO |
0.150 |
|
2X1 |
9.000 |
4.500 |
3.500 |
2.070 |
1.060 |
0.120 |
TO |
0.175 |
|
2X1-1/2 |
9.000 |
5.500 |
4.125 |
2.070 |
1.630 |
0.140 |
TO |
0.175 |
|
3X1 |
10.125 |
5.625 |
4.000 |
3.060 |
1.060 |
0.125 |
TO |
0.215 |
|
3X1-1/2 |
10.375 |
5.750 |
4.000 |
3.040 |
1.610 |
0.125 |
TO |
0.180 |
|
3X2 |
11.000 |
5.625 |
4.125 |
3.060 |
2.050 |
0.165 |
TO |
0.240 |
|
4X1 |
11.500 |
6.375 |
4.500 |
3.975 |
1.060 |
0.125 |
TO |
0.200 |
|
4X1-1/2 |
10.500 |
5.125 |
3.000 |
4.090 |
1.560 |
0.170 |
TO |
0.210 |
|
4X2 |
10.500 |
5.125 |
3.000 |
4.080 |
2.070 |
0.185 |
TO |
0.210 |
|
4X3 |
10.500 |
5.125 |
3.000 |
4.090 |
3.050 |
0.190 |
TO |
0.210 |
|
6X2 |
15.750 |
|
|
|
|
|
TO |
|
|
6X3 |
15.750 |
|
|
|
|
|
TO |
|
|
6X4 |
15.750 |
7.500 |
4.375 |
6.115 |
3.825 |
0.210 |
TO |
0.230 |
|
8X4 |
17.250 |
8.000 |
4.500 |
7.990 |
3.950 |
0.180 |
TO |
0.220 |
|
8X6 |
17.250 |
8.000 |
5.000 |
8.025 |
5.980 |
0.160 |
TO |
0.200 |
|
10X4 |
17.250 |
10.250 |
6.500 |
10.010 |
4.025 |
0.220 |
TO |
0.250 |
|
10X6 |
17.250 |
10.250 |
6.500 |
10.050 |
5.960 |
0.200 |
TO |
0.260 |
|
10X8 |
17.500 |
10.375 |
6.625 |
10.125 |
7.950 |
0.230 |
TO |
0.250 |
|
12X10 |
17.500 |
10.000 |
4.500 |
12.025 |
7.910 |
0.230 |
TO |
0.260 |
|
12X8 |
17.000 |
9.750 |
4.250 |
11.960 |
7.900 |
0.230 |
TO |
0.260 |
|
12X6 |
17.500 |
9.250 |
4.500 |
12.000 |
5.925 |
0.230 |
TO |
0.250 |
Dimension G is Transition Between Dimensions F and H
|